Basics
- Date added: Added 8 months ago
- Lot size: 599 m²
Description
-
Description: Show all description
SOLE MANDATED VACANT LAND FOR SALE
This stand, has just be released. This is in a prime location, facing the dam on the 4th green. The first photos show the beautiful view and the position is shown on the map.
Discover the epitome of luxurious living with this prime 600m2 stand, now available and facing the golf course and dam at the 5th fairway. Offering a unique lifestyle, this property provides breath-taking views and the peace of mind that comes with a high security estate. An approved plan from both the HOA and NMBM, potentially saving you more than R 50,000 can be utilized, or a new plan can be designed. All water and electrical connections costs have already been settled, making this an exceptional opportunity. This too saves time for approvals. Ready to go!
OPTION:
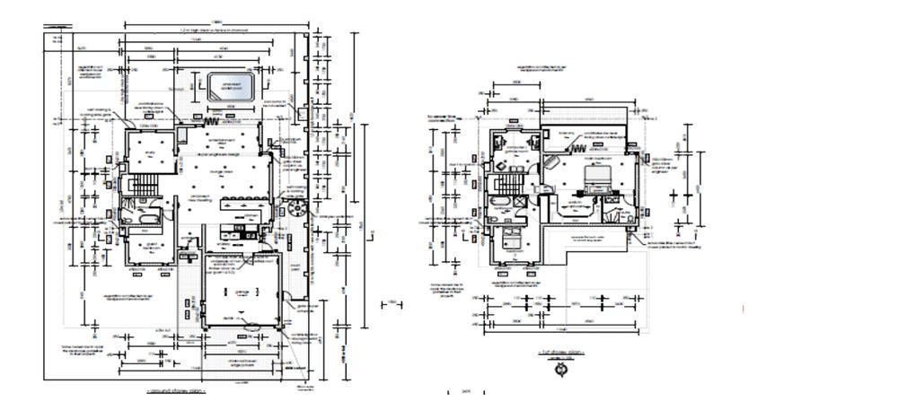
The approved plan features a thoughtfully designed layout to maximize comfort and elegance. However, should you prefer to purchase the vacant land without the plan, that option is also available. For more details, please contact the agent.
The ground floor plan includes a double garage leading into a scullery, a guest bedroom with an en suite bathroom, and a study that boasts stunning views of the golf course. The entertainment area features an open-plan kitchen with a separate scullery, perfect for hosting friends and family in style.
Upstairs, the plan includes two bedrooms. The spacious main bedroom features an en suite bathroom with a walk-in dressing room and shower, opening onto a balcony with beautiful views over the dam and the 5th fairway. The second bedroom also comes with an en suite bathroom. Additionally, there is a computer room or games room, making this home both functional and luxurious.
Wedgewood Golf & Country Estate offers a lifestyle that can be seen as a "secret gem." For more information on the benefits of living in this exclusive estate, contact us agent today. Make your dream home a reality in this exceptional setting.